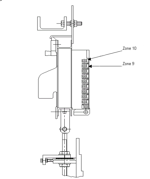
120 -  Additional heating zones 9 & 10
    
            
                      
  
          
  Description
Adaptation of 2 additional heating zone ( 9 & 10) if not existing originally.
Key message
Extra heating power
        Machine application
Blowers S1- SBO 4/4 - SBO 6/6 - SBO 10/10 - SBO 16 - SBO 24/26
Benefits
Contribute to increase heating power, in case of long preform, by increasing amount of lamps inside the oven.

 
                      


