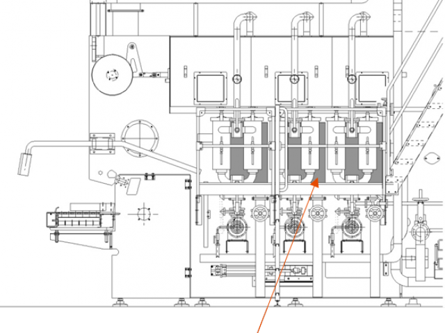
VRB038 - Wedge wire filter in rinse zone
Description
- A unique structure made of stainless steel
- The new structure is not welded on the machine
- Inside the structure, there is a wedge filter in three pieces
- One piece for each rinsing zone
- The system cleans the rinsing zone water
- All the dirt is discharged outside using a specific channel
- The wedge wire filter is made of stainless steel
Key message
Reduce maintenance costs and increase efficiency
Machine application
Bottle washer - Oceano- NDE
Benefits
-No intervention necessary during production
-The dirt is held back by the filter and automatically ejected by the water flow during the filtration process
-Less maintenance of spray nozzles
-Reduced maintenance costs







