SYSTÈME À DOUBLE BOUCHEUSE SUR CHÂSSIS UNIQUE [MS001]

MS001 - SYSTÈME À DOUBLE BOUCHEUSE SUR CHÂSSIS UNIQUE
Après
  • Type de machine Remplisseuse
  • Thèmes O&U Flexibilité

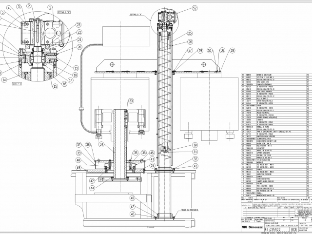
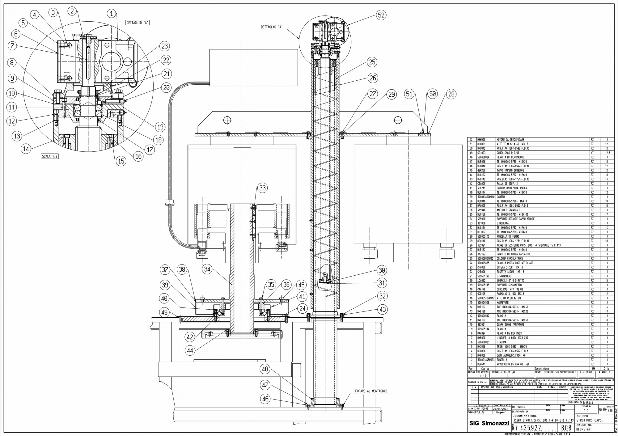
Description

Système double adapté à tous les formats de bouchons : possibilité de traiter à la fois des bouteilles avec bouchons à vis (plastique et aluminium) ou avec capsules sur la même remplisseuse. Changement de format rapide : l'unité de bouchage peut être sélectionnée en soulevant simplement la structure selon le produit à traiter. Le système consiste en un support en T monté sur la base : les deux boucheuses sont montées de part et d'autre de ce support, et un moteur assure le déplacement entre les deux unités de bouchage.


Application machine

- Filler SARCMI STILLJET - Filler SARCMI BLUESTAR